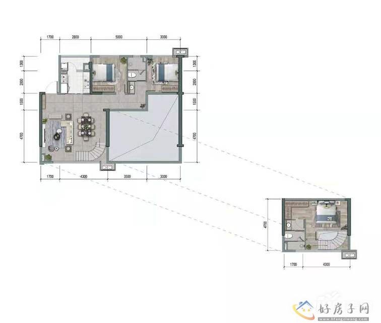
红星观山天铂在售产品类型为高层跃式,小高层跃式,户型面积高层跃式:95平米,108平米,小高层跃式:124平米,128平米,在售楼栋2栋,3栋,6栋,8栋,总层高18层-27层,梯户比为2T4户,2T2户,塔式结构,板式结构均有,2021年8月均价为13500元/平米。项目位于贵州省贵阳市观山湖区阳关大道5号,总占地面积380000平米,建筑面积115000平米(G地块),容积率2.5%,绿化率35%.
分享到:
中铁悦龙南山
5600元/平米
贵阳市
中铁橙果
6300元/平米